Via Giuseppe Tartini 13
Ricerche Immobiliari propone in vendita appartamento di ampia metratura frutto di una fusione di due unità immobiliari,composto da: soggiorno, cucina abitabile ,due ampie camere e bagno doppio accorpato in uno; completa l'offerta vano cantina di circa 6 mq e solaio molto ampio ; doppia esposizione. Possibilità box a parte
Ace C 87 khw/m2a
Via Cogne
Ricerche Immobiliari propone in vendita appartamento con ampio terrazzo, in zona di forte espansione urbanistica.
Lo stesso ubicato in stabile anni '90 e in ottime condizioni si compone da: ingresso, sala con cucina abitabile a vista, camera matrimoniale e cameretta; doppi servizi e terrazzo al piano di 15 mq circa oltre a un favoloso terrazzo al quarto piano di 80mq.
Libero subito
via Degli Imbriani
Ricerche Immobiliari propone in vendita trilocale di 80 mq posto al 3^ piano di uno stabile d’epoca con ascensore e servizio di portineria mattutino.
L’appartamento è stato di recente finemente ristrutturato ed è composto da soggiorno con cucina a vista, due camere da letto, balcone e cantina.
La posizione ottimale collega l’immobile con i mezzi di trasporto 90/91/92/2, passante ferroviario Lancetti e stazione Bovisa.
Richiesta della proprietà €320.000,00.
Libero gennaio 2021
Via Antonio Carnevali
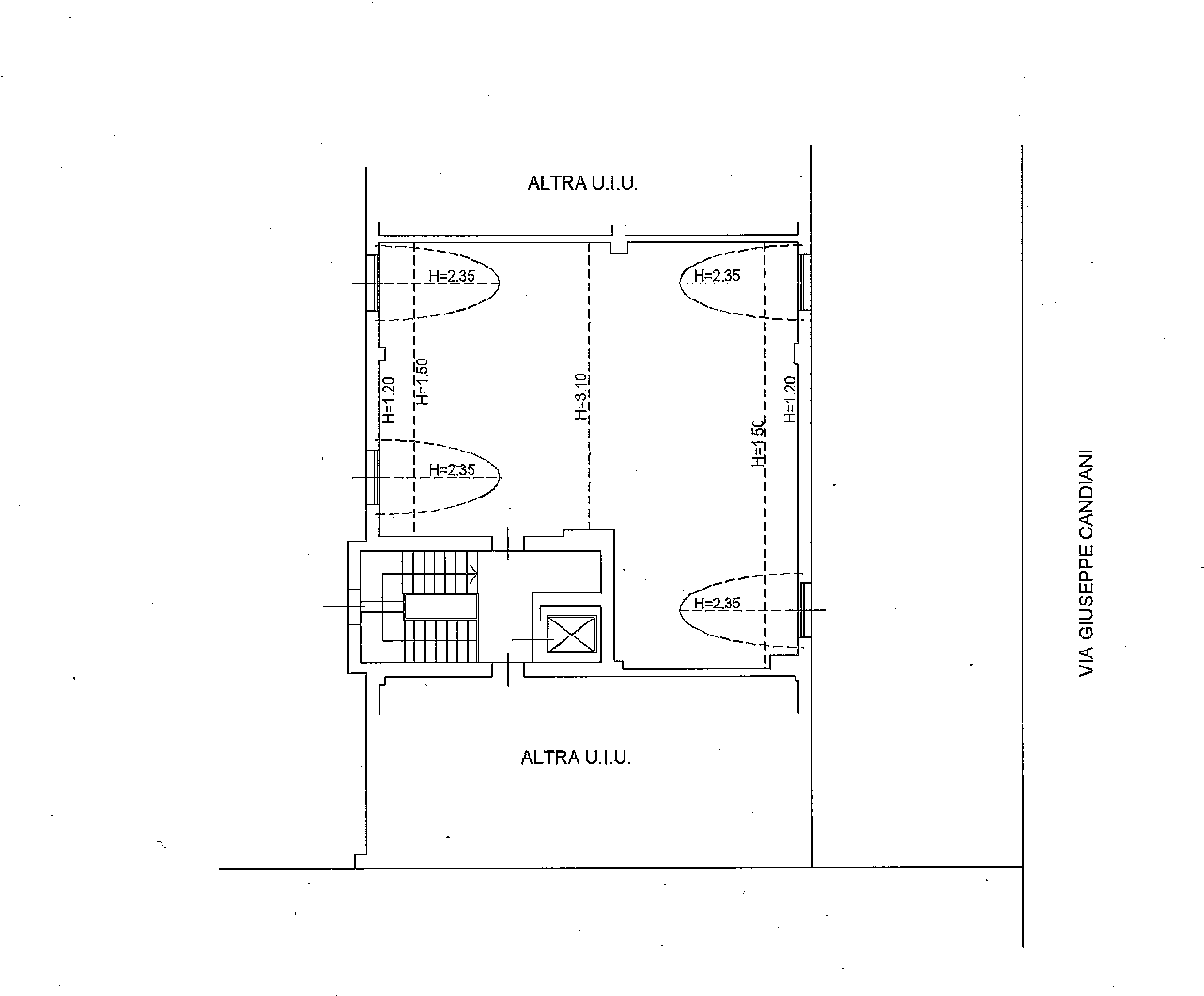
Ricerche Immobiliari propone in zona Dergano, in palazzo di nuova realizzazione; sottotetto di 140 mq al grezzo, lo stesso progettabile come meglio si crede.
sotto elencate alcune voci per farsi un calcolo di massima:
sottotetto € 340.000,00 comprensivo di box doppio
Cambio destinazione d'uso € 20.000,00
rifiniture e apertura velux circa € 60.000,00
per maggiori informazioni contattare al 3427287683


















